Постановление Правительства Челябинской области от 30.10.2025 № 722-П
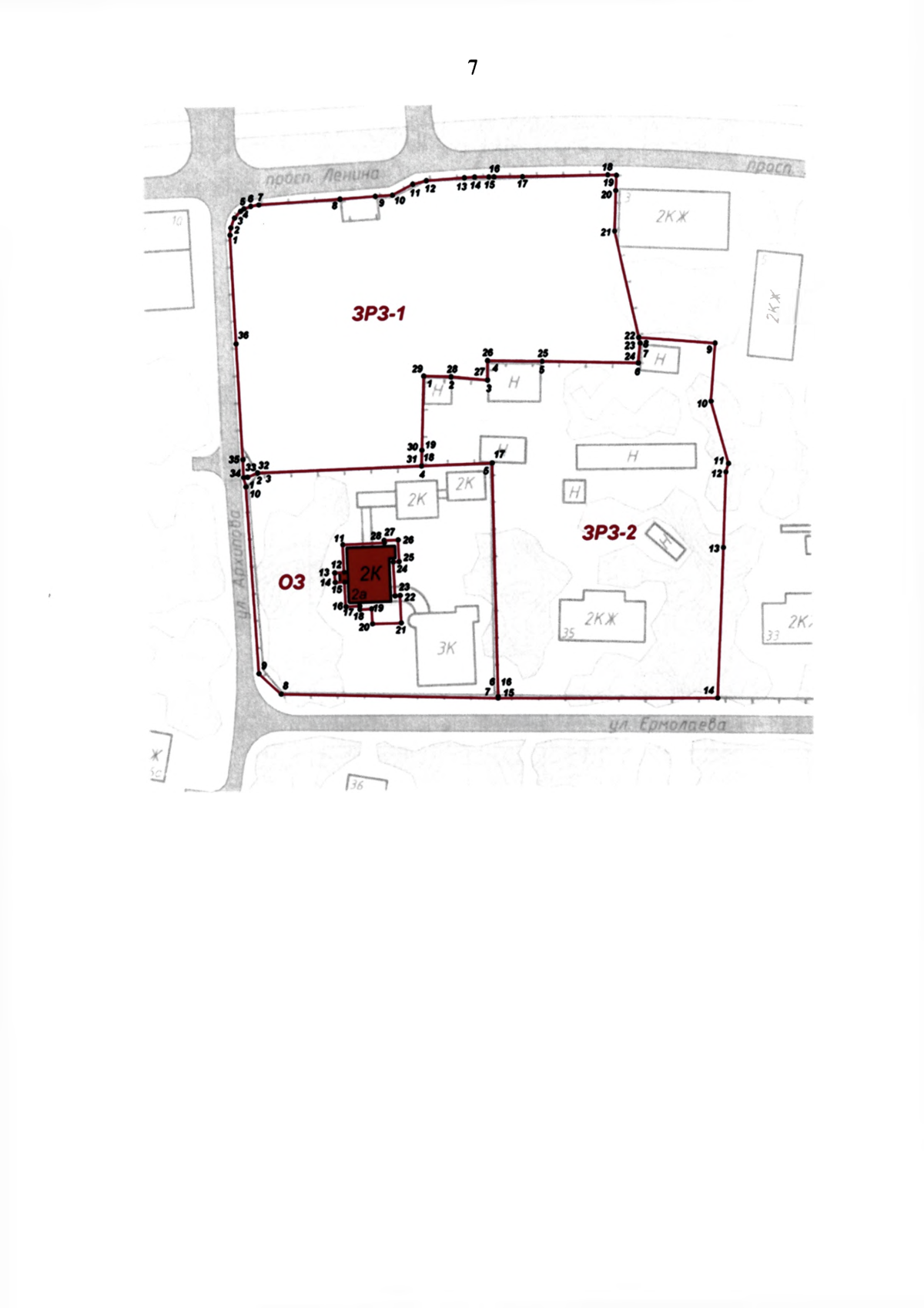
"О принятии решения об установлении зон охраны и утверждении требований к градостроительным регламентам в границах территорий зон охраны объекта культурного наследия регионального значения "Здание гостиницы "Министерская", расположенного по адресу: Челябинская область, город Озерск, улица Архипова, дом 2б"
"О принятии решения об установлении зон охраны и утверждении требований к градостроительным регламентам в границах территорий зон охраны объекта культурного наследия регионального значения "Здание гостиницы "Министерская", расположенного по адресу: Челябинская область, город Озерск, улица Архипова, дом 2б"
Номер опубликования: 7400202511010010
Дата опубликования:
01.11.2025
