Официальное опубликование правовых актов
ОФИЦИАЛЬНОЕ ОПУБЛИКОВАНИЕ
Постановление Правительства Донецкой Народной Республики от 22.12.2025 № 127-3
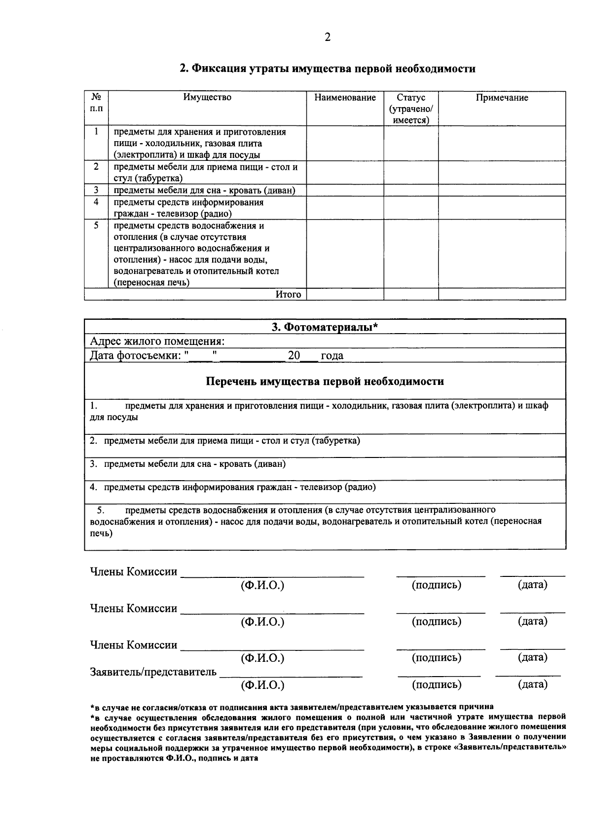
"О внесении изменений в постановление Правительства Донецкой Народной Республики от 7 августа 2023 г. № 61-1 "О реализации мер социальной поддержки граждан, жилые помещения которых утрачены или повреждены в результате боевых действий, а также утративших имущество первой необходимости в результате боевых действий на территории Донецкой Народной Республики"
Номер опубликования: 8000202512250001
Дата опубликования: 25.12.2025
Страница №168 из 180:
Увеличить